arrow_back All Floor Plans
Plan #01

Solis

400
Sq Ft
1
Bed
1
Bath

About the Solis

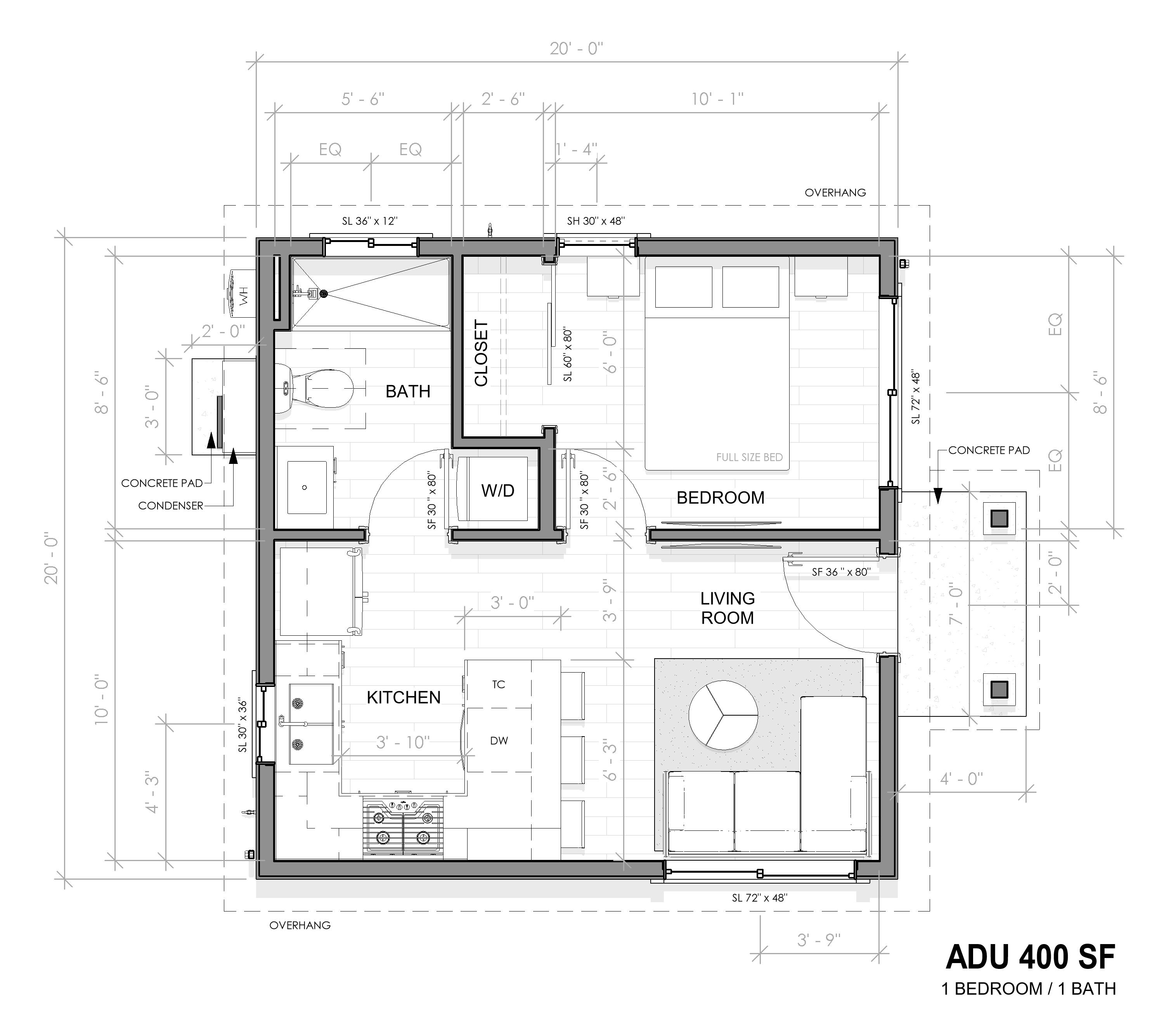
The Solis is a beautifully designed 400 square foot ADU featuring 1 bedroom and 1 bathroom. Every plan by CRS Builders comes with premium finishes including quartz countertops, luxury vinyl plank flooring, and modern fixtures.

This plan is fully customizable — adjust the layout, finishes, and features to match your exact needs and property constraints. Our design team will work with you to make it yours.

What's Included

check_circle Full architectural drawings
check_circle Structural engineering
check_circle Permit processing
check_circle Premium finishes
check_circle Energy-efficient design
check_circle Full site preparation
architecture Floor Plan Drawing
Solis 2D Floor Plan Drawing
zoom_in
tune Plan Fit & Feasibility

Is the Solis right for your property?

The Solis works well for compact rental suite, guest casita, home office with sleeping space, or private living area for one person. CRS Builders uses the floor plan as a starting point, then studies your property, access, budget, and permitting path before recommending the final layout.

Before choosing any ADU plan, it is important to confirm setbacks, utility locations, site access, privacy, and how the new unit will relate to the existing home.

Because this is one of the most compact plans, the biggest value comes from careful storage, clean circulation, and a layout that does not feel cramped. During planning, CRS can review whether the Solis should sit near an existing driveway, tuck into a side or rear yard, or connect to a small private patio so the ADU feels intentional instead of squeezed onto the lot.

A quick feasibility review can also confirm whether this compact plan should be priced as a simple backyard ADU or adjusted for access, utility, or site-prep complexity.

yard

Property Fit

Best suited for smaller backyards, narrow access conditions, and properties where preserving outdoor space matters.

rule

Design Checks

Key items include utility routing, privacy from the main home, window placement, and a clean pedestrian path from the street or driveway.

add_home_work

Common Upgrades

Homeowners often consider built-in storage, stacked laundry, patio doors, a covered entry, upgraded acoustic separation, and a higher-efficiency mini-split.

link

Next Step

Compare this plan with our ADU construction process, schedule a free consultation, or view a related portfolio project.

view_in_ar 3D Model Renders

See It Come to Life.

Solis 3D Isometric Model — Primary View
Solis 3D Isometric Model — Alternate View
Start Your Project

Love the Solis?

Schedule a free consultation and we'll walk you through how the Solis can work on your property. Every plan is fully customizable — no pressure, no obligations.

verified CA Licensed (Lic# 1041423)
shield Fully Insured
star 150+ Happy Clients