arrow_back All Floor Plans
Plan #03

Aria

540
Sq Ft
1
Bed
1
Bath

About the Aria

The Aria is a beautifully designed 540 square foot ADU featuring 1 bedroom and 1 bathroom. Every plan by CRS Builders comes with premium finishes including quartz countertops, luxury vinyl plank flooring, and modern fixtures.

This plan is fully customizable — adjust the layout, finishes, and features to match your exact needs and property constraints. Our design team will work with you to make it yours.

What's Included

check_circle Full architectural drawings
check_circle Structural engineering
check_circle Permit processing
check_circle Premium finishes
check_circle Energy-efficient design
check_circle Full site preparation
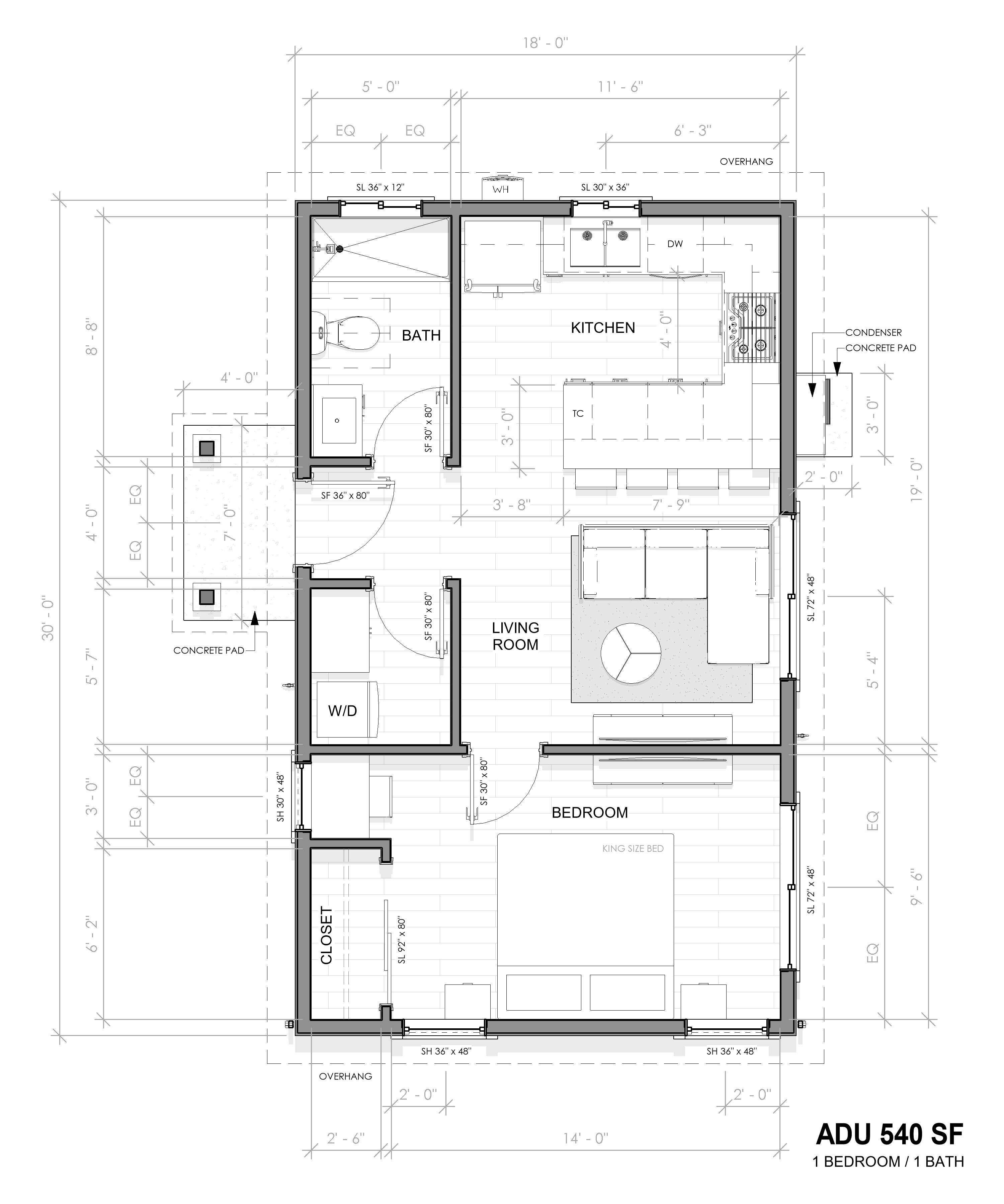
architecture Floor Plan Drawing
Aria 2D Floor Plan Drawing
zoom_in
tune Plan Fit & Feasibility

Is the Aria right for your property?

The Aria works well for homeowners who want a bright one-bedroom ADU that feels open, efficient, and easy to rent or use for guests. CRS Builders uses the floor plan as a starting point, then studies your property, access, budget, and permitting path before recommending the final layout.

Before choosing any ADU plan, it is important to confirm setbacks, utility locations, site access, privacy, and how the new unit will relate to the existing home.

The Aria benefits from thoughtful window placement and an open living area, so early design decisions matter. CRS can help determine whether the unit should face a garden, patio, side yard, or existing view corridor while still protecting privacy for both the ADU resident and the main house.

During early planning, CRS can also compare the Aria against other one-bedroom plans so you choose the right balance of size, cost, and comfort.

yard

Property Fit

Best suited for yards that benefit from a modest footprint but can support more glazing, outdoor connection, and a slightly more spacious living area.

rule

Design Checks

Key items include natural light, privacy screening, door orientation, setbacks, and how the unit will connect to utilities without disrupting the main home.

add_home_work

Common Upgrades

Homeowners often consider larger windows, vaulted ceilings where feasible, upgraded cabinetry, a compact desk nook, exterior lighting, and low-maintenance flooring.

link

Next Step

Compare this plan with our ADU construction process, schedule a free consultation, or view a related portfolio project.

view_in_ar 3D Model Renders

See It Come to Life.

Aria 3D Isometric Model — Primary View
Aria 3D Isometric Model — Alternate View
Start Your Project

Love the Aria?

Schedule a free consultation and we'll walk you through how the Aria can work on your property. Every plan is fully customizable — no pressure, no obligations.

verified CA Licensed (Lic# 1041423)
shield Fully Insured
star 150+ Happy Clients