arrow_back All Floor Plans
Plan #02

Vela

500
Sq Ft
1
Bed
1
Bath

About the Vela

The Vela is a beautifully designed 500 square foot ADU featuring 1 bedroom and 1 bathroom. Every plan by CRS Builders comes with premium finishes including quartz countertops, luxury vinyl plank flooring, and modern fixtures.

This plan is fully customizable — adjust the layout, finishes, and features to match your exact needs and property constraints. Our design team will work with you to make it yours.

What's Included

check_circle Full architectural drawings
check_circle Structural engineering
check_circle Permit processing
check_circle Premium finishes
check_circle Energy-efficient design
check_circle Full site preparation
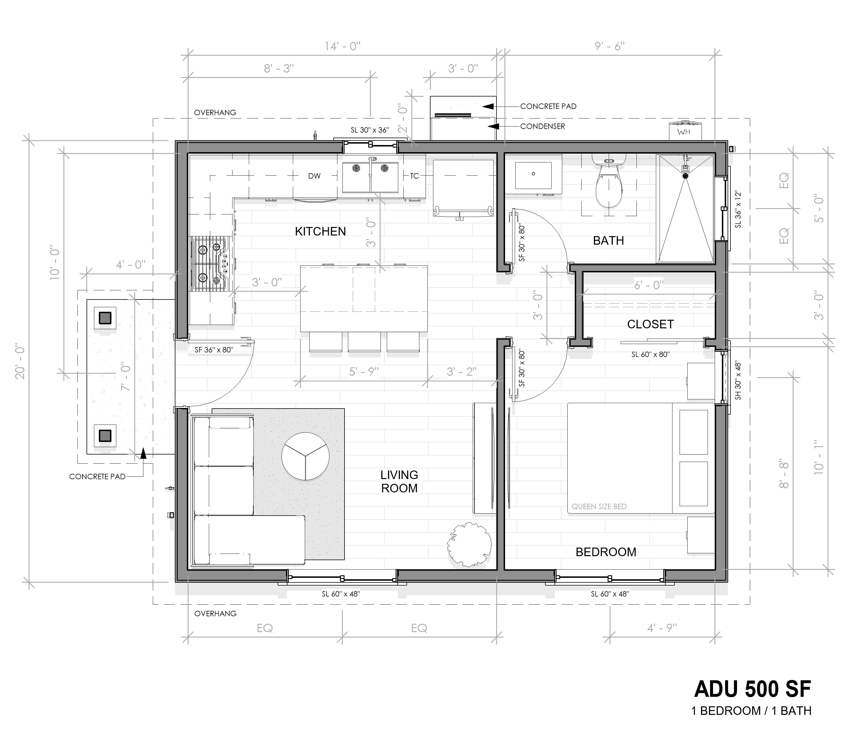
architecture Floor Plan Drawing
Vela 2D Floor Plan Drawing
zoom_in
tune Plan Fit & Feasibility

Is the Vela right for your property?

The Vela works well for a comfortable one-bedroom ADU for long-term rental, visiting family, or independent living with a little more breathing room than a studio-sized plan. CRS Builders uses the floor plan as a starting point, then studies your property, access, budget, and permitting path before recommending the final layout.

Before choosing any ADU plan, it is important to confirm setbacks, utility locations, site access, privacy, and how the new unit will relate to the existing home.

For many San Diego homeowners, the Vela is a practical middle ground: small enough to stay efficient, but large enough to feel like a true one-bedroom home. CRS can help compare rental goals, family use, and finish expectations so the final plan balances construction cost, privacy, and long-term durability.

A consultation can clarify whether the Vela should be optimized for rental performance, family comfort, or a flexible guest suite before drawings move forward.

yard

Property Fit

Best suited for standard San Diego backyards where a 500 square foot footprint can fit without overwhelming the yard.

rule

Design Checks

Key items include kitchen placement, bathroom venting, accessible service paths, and keeping the outdoor area useful for both homes.

add_home_work

Common Upgrades

Homeowners often consider a larger wardrobe wall, private patio, skylight, in-unit laundry, solar-ready electrical planning, and durable rental-grade finishes.

link

Next Step

Compare this plan with our ADU construction process, schedule a free consultation, or view a related portfolio project.

view_in_ar 3D Model Renders

See It Come to Life.

Vela 3D Isometric Model — Primary View
Vela 3D Isometric Model — Alternate View
Start Your Project

Love the Vela?

Schedule a free consultation and we'll walk you through how the Vela can work on your property. Every plan is fully customizable — no pressure, no obligations.

verified CA Licensed (Lic# 1041423)
shield Fully Insured
star 150+ Happy Clients